欢迎来到,方林装饰集团官网! 咨询热线:400-063-1918 售后热线:400-005-1918
当前位置:首页 > 装修攻略 > 实用的装修注意事项,看了不后悔!
10秒装修报价算算我家装修需要花多少钱?
今天已有098位获取了装修预算
  • 1小时25分钟刘先生获取报价4.2万元
  • 2小时05分钟前王先生获取报价15万元
  • 1小时25分钟马先生获取报价12万元
  • 2小时55分钟于女士获取报价5.8万元
  • 3分钟前孙先生获取报价9.6万元
  • 5分钟前孟先生获取报价10万元
  • 8分钟前韩女士获取报价12万元
  • 32分钟前赵先生获取报价6.3万元
  • 44分钟前黄先生获取报价13.6万元
  • 1小时前孙女士获取报价20万元
  • 1小时20分钟前李先生获取报价16.3万元
  • 1小时25分钟刘先生获取报价4.2万元
  • 2小时05分钟前王先生获取报价15万元
  • 1小时25分钟马先生获取报价12万元
  • 2小时55分钟于女士获取报价5.8万元
  • 3分钟前孙先生获取报价9.6万元
  • 5分钟前孟先生获取报价10万元

73㎡现代简约风一居室,堪称打工人的装修范本!

装修咨询热线:400 063 1918

案例简介

微信图片_20221123134750.png

本案例是一套73㎡的现代简约风一居室,配色采用大胆的撞色设计,让整个房屋看起来个性十足。


LDK一体式布局充分利用有限空间的同时,增进了家人间的互动。希望这套装修案例能给准备装修的朋友带来一些灵感。


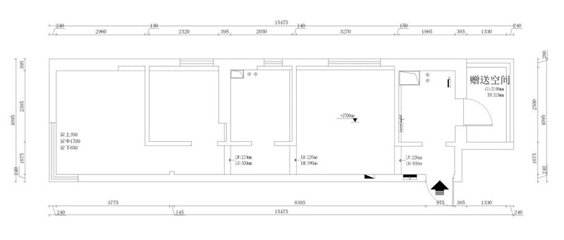
户型图

微信图片_20221123134758.jpg

客 厅

微信图片_20221123134801.png

微信图片_20221123134803.png

方正的客厅空间里,木质地板营造大气的空间氛围,橘色沙发、灰色抱枕、黑白格的单人沙发椅错落有致。吊灯、筒灯、射灯等多种照明方式组合布局,营造出富有层次感的灯光氛围。


厨 房

微信图片_20221123134806.jpg

用色大胆的U型橱柜不仅丰富了空间功能性,更使其在视觉上更加宽阔明亮。橱柜内嵌电器的设计以及墙面安装的置物架,都体现出对空间的充分利用。


餐 厅

微信图片_20221123134809.png

餐厅为开放式布局,沙发背后的吧台可以作为餐桌使用,这种布局方式不仅方便居住者就餐时观看电视,还可以起到优化日常动线的作用。


卧 室

微信图片_20221123134812.png

微信图片_20221123134814.png

卧室的主色调与客厅形成对比,整个空间舒适沉稳而不单调。床头背景墙做了壁龛设计,用于摆放日常物品、展示屋主的收藏品,加上灯带的衬托,整个空间更加个性化。


卫 生 间

微信图片_20221123134817.jpg

微信图片_20221123134819.jpg

卫生间做了干湿分离设计,白色洗手盆和黑框玻璃淋浴房两者的搭配,让整个空间显得简洁又个性。洗手池做墙排设计,让打扫变得更加方便。


算算我家装修多少钱?
点击提交
1分钟前 176****4091 报价3.6万元
1分钟前 188****3037 报价4.5万元
4分钟前 152****4095 报价6.3万元
5分钟前 132****6096 报价7.8万元
5分钟前 179****5088 报价6.4万元
7分钟前 151****4287 报价3.7万元
ban01
ban01

—今日已有 359 位业主预约—

  • 郝先生188****3037已抢占名额
  • 魏女士130****5429已抢占名额
  • 张先生158****1685已抢占名额
  • 王先生155****2882已抢占名额
  • 李女士185****4232已抢占名额
  • 王先生131****4685已抢占名额
  • 张先生177****5820已抢占名额
  • 李先生190****4412已抢占名额
  • 刘女士188****5576已抢占名额
  • 钱女士135****4003已抢占名额
  • 郑先生152****9523已抢占名额
  • 孙先生155****4369已抢占名额
  • 赵女士158****4162已抢占名额
  • 周先生132****4522已抢占名额
  • 韩先生138****4054已抢占名额
  • 郝先生188****3037已抢占名额
  • 魏女士130****5429已抢占名额
  • 张先生158****1685已抢占名额
  • 王先生155****2882已抢占名额
  • 李女士185****4232已抢占名额
  • 王先生131****4685已抢占名额
  • 张先生177****5820已抢占名额
  • 李先生190****4412已抢占名额
  • 刘女士188****5576已抢占名额
  • 钱女士135****4003已抢占名额
  • 郑先生152****9523已抢占名额
  • 孙先生155****4369已抢占名额
  • 赵女士158****4162已抢占名额
  • 周先生132****4522已抢占名额
  • 韩先生138****4054已抢占名额

—— 1+N团队服务,私人订制专属平面方案 ——

ban01

预约成功

稍后会有客户经理与您联系
为您提供专属服务,请留意接听电话